LOGIN
HOME
CATEGORIES
UPLOAD FILE
PRICING
HOUSE PLAN
ABOUT US
CONTACT US
Commercial Layout Design In AutoCAD File
Home
Categories
Architecture
Corporate Building
Commercial Layout Design In AutoCAD File
Uploaded by:
Eiz
Luna
View Profile
View Profile
Description
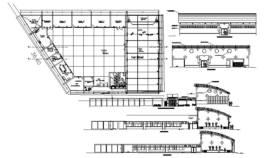
Commercial Layout Design In AutoCAD File it includes detail of a conference room, waiting room, reception, kitchen, etc
File Type:
DWG
File Size:
1.3 MB
Category::
Architecture
Sub Category::
Corporate Building
type:
Gold
Uploaded by:
Eiz
Luna
View Profile
Download
Add to libary
find Latest
Related
Files