Bungalow Elevation Drawing In AutoCAD File
Description
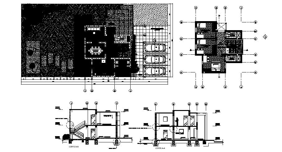
Bungalow Elevation Drawing In AutoCAD File which provide detail of different elevation, different section, detail dimension of the hall, bedroom, kitchen, dining room, bathroom, toilet, etc it also gives detail of the garden area, passage, furniture, floor level.

Uploaded by:
Eiz
Luna

