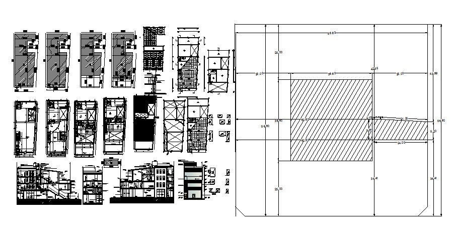
Small Office Building Plans And Designs In AutoCAD File
Description
Small Office Building Plans And Designs In AutoCAD File which provides detail of the different section, east elevation, detail dimension of office area, reception area, kitchen area, bathroom, toilet.

Uploaded by:
Eiz
Luna

