Office Building Plan Elevation Section Drawing In DWG File
Description
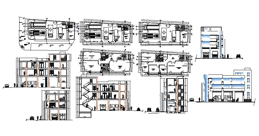
Office Building Plan Elevation Section Drawing In DWG File it includes detail of front elevation, side elevation, different section, detail of floor level, detail of hall, administration area, WC and bath, parking plan.

Uploaded by:
Eiz
Luna

