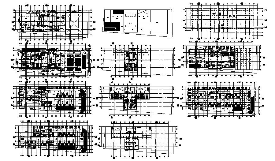
Multipurpose Building In AutoCAD File
Description
Multipurpose Building In AutoCAD File which provides detail of hotel restaurant area, office area, gym area, washroom and toilet, etc it also gives detail of parking plan.

Uploaded by:
Eiz
Luna

Uploaded by:
Luna