Workplace Design In DWG File
Description
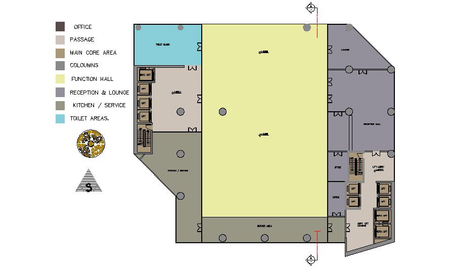
Workplace Design In DWG File which includes detail of workplace area, function hall, pre-function hall, reception hall, lounge, kitchen, lift lobby, toilet block, service area.

Uploaded by:
Eiz
Luna

Uploaded by:
Luna