LOGIN
HOME
CATEGORIES
UPLOAD FILE
PRICING
HOUSE PLAN
ABOUT US
CONTACT US
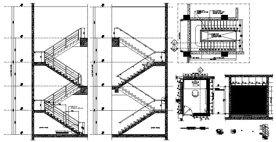
Staircase Plan In DWG File
Home
Categories
Architecture
House Plan
Staircase Plan In DWG File
Uploaded by:
Eiz
Luna
View Profile
View Profile
Description
Staircase Plan In DWG File which provides detail of elevation for wall paneling, detail of section detail.
File Type:
DWG
File Size:
3.8 MB
Category::
Architecture
Sub Category::
House Plan
type:
Gold
Uploaded by:
Eiz
Luna
View Profile
Download
Add to libary
find Latest
Related
Files