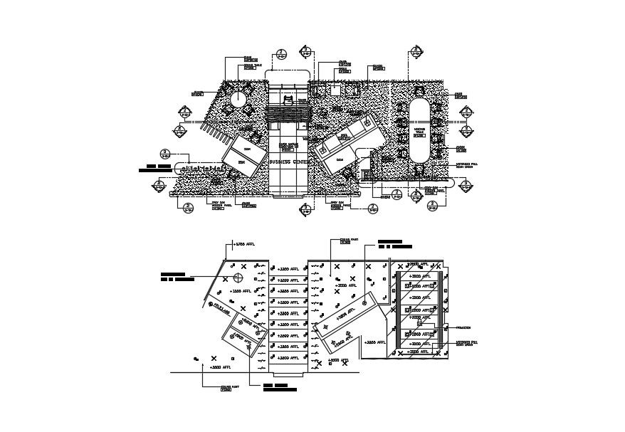
Office Layout Drawing In AutoCAD File
Description
Office Layout Drawing In AutoCAD File which provides detail of the meeting room, carpet area, reception area, working area. It also gives detail of ceiling layout.

Uploaded by:
Eiz
Luna

Uploaded by:
Luna