LOGIN
HOME
CATEGORIES
UPLOAD FILE
PRICING
HOUSE PLAN
ABOUT US
CONTACT US
School Design In AutoCAD File
Home
Categories
Architecture
School & Hostel
School Design In AutoCAD File
Uploaded by:
Eiz
Luna
View Profile
View Profile
Description
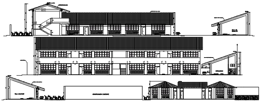
School Design In AutoCAD File which includes details of different elevation, detail of floor level, detail of doors and windows.
File Type:
DWG
File Size:
1.7 MB
Category::
Architecture
Sub Category::
School & Hostel
type:
Gold
Uploaded by:
Eiz
Luna
View Profile
Download
Add to libary
find Latest
Related
Files