LOGIN
HOME
CATEGORIES
UPLOAD FILE
PRICING
HOUSE PLAN
ABOUT US
CONTACT US
Institute Floor Plan In DWG File
Home
Categories
Architecture
University
Institute Floor Plan In DWG File
Uploaded by:
Eiz
Luna
View Profile
View Profile
Description
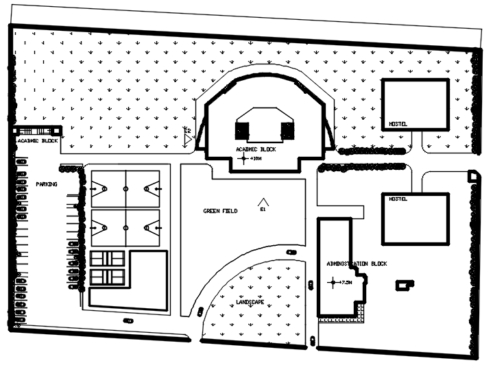
Institute Floor Plan In DWG File which includes detail of greenfield, administration block, hostel, parking area, washroom.
File Type:
DWG
File Size:
2.8 MB
Category::
Architecture
Sub Category::
University
type:
Gold
Uploaded by:
Eiz
Luna
View Profile
Download
Add to libary
find Latest
Related
Files