Download Free House Ground Floor Design In AutoCAD File
Description
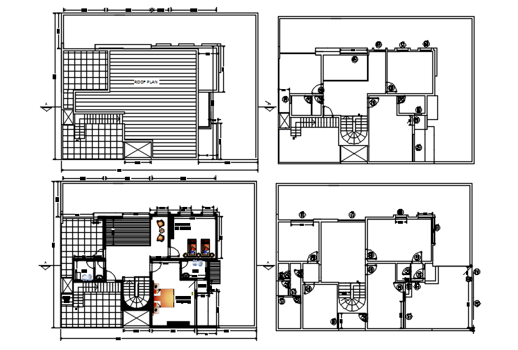
Download Free House Ground Floor Design In AutoCAD File it includes detail of hall, bedroom, kitchen, bathroom. It also gives detail of roof plan.

Uploaded by:
Eiz
Luna

Uploaded by:
Luna