Residential Architecture Design In AutoCAD File
Description
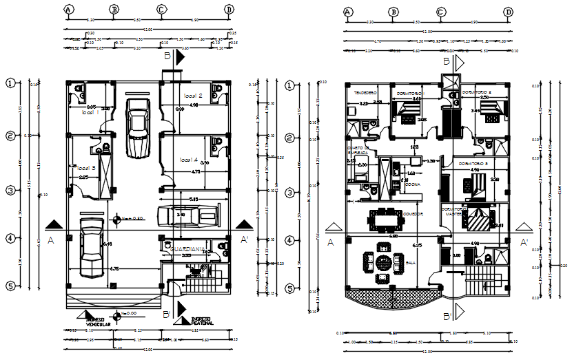
Residential Architecture Design In AutoCAD File which provides detail of hall, bedroom, kitchen with dining area, bathroom. It also gives detail of the parking plan.

Uploaded by:
Eiz
Luna

Uploaded by:
Luna