LOGIN
HOME
CATEGORIES
UPLOAD FILE
PRICING
HOUSE PLAN
ABOUT US
CONTACT US
House Map Plan In AutoCAD File
Home
Categories
Architecture
House Plan
House Map Plan In AutoCAD File
Uploaded by:
Eiz
Luna
View Profile
View Profile
Description
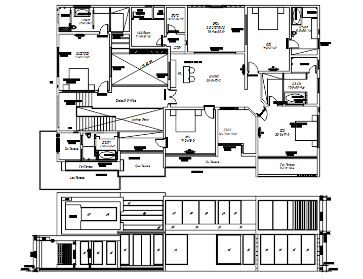
House Map Plan In AutoCAD File which provides detail of front elevation, detail of hall, lounge, master bedroom, kitchen, open terrace, dining area, bathroom.
File Type:
DWG
File Size:
876 KB
Category::
Architecture
Sub Category::
House Plan
type:
Gold
Uploaded by:
Eiz
Luna
View Profile
Download
Add to libary
find Latest
Related
Files