Apartment Building Floor Plan In AutoCAD File
Description
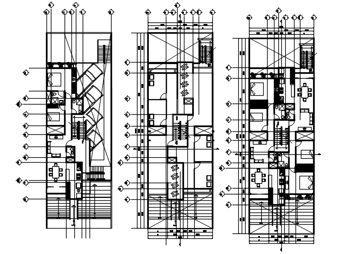
Apartment Building Floor Plan In AutoCAD File it includes detail of the drawing-room, bedroom, kitchen, dining room, bathroom. It also gives car parking detail.

Uploaded by:
Eiz
Luna

Uploaded by:
Luna