LOGIN
HOME
CATEGORIES
UPLOAD FILE
PRICING
HOUSE PLAN
ABOUT US
CONTACT US
Bank Design Layout In DWG File
Home
Categories
Architecture
Bank Drawing
Bank Design Layout In DWG File
Uploaded by:
Eiz
Luna
View Profile
View Profile
Description
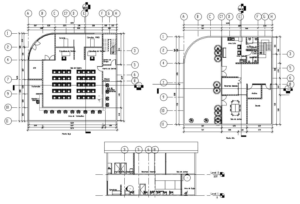
Bank Design Layout In DWG File which provides detail of waiting room, ATM, billing area, customer service area, the window for reference, cafe area, WC and bath.
File Type:
DWG
File Size:
1.2 MB
Category::
Architecture
Sub Category::
Bank Drawing
type:
Gold
Uploaded by:
Eiz
Luna
View Profile
Download
Add to libary
find Latest
Related
Files