Commercial Building Design In DWG File
Description
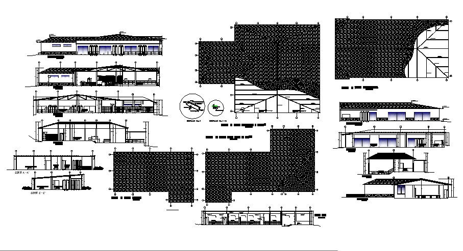
Commercial Building Design In DWG File which provides detail of different floor, different section, front elevation, side elevation, back elevation, detail dimension of the restaurant area, gym area, kitchen area, etc it also gives full detail of furniture.

Uploaded by:
Eiz
Luna

