Architecture Villa Design In DWG File
Description
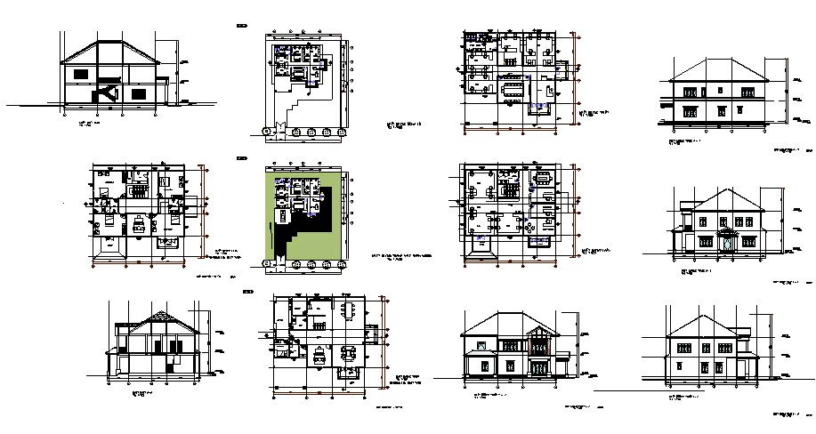
Architecture Villa Design In DWG File which provides detail of front elevation, side elevation, different section, detail of floor level, detail dimension of hall, bedroom, kitchen, dining room, office area, meeting room, WC and bath, etc it also gives full detail of furniture.

Uploaded by:
Eiz
Luna

