House Elevation Design In AutoCAD File
Description
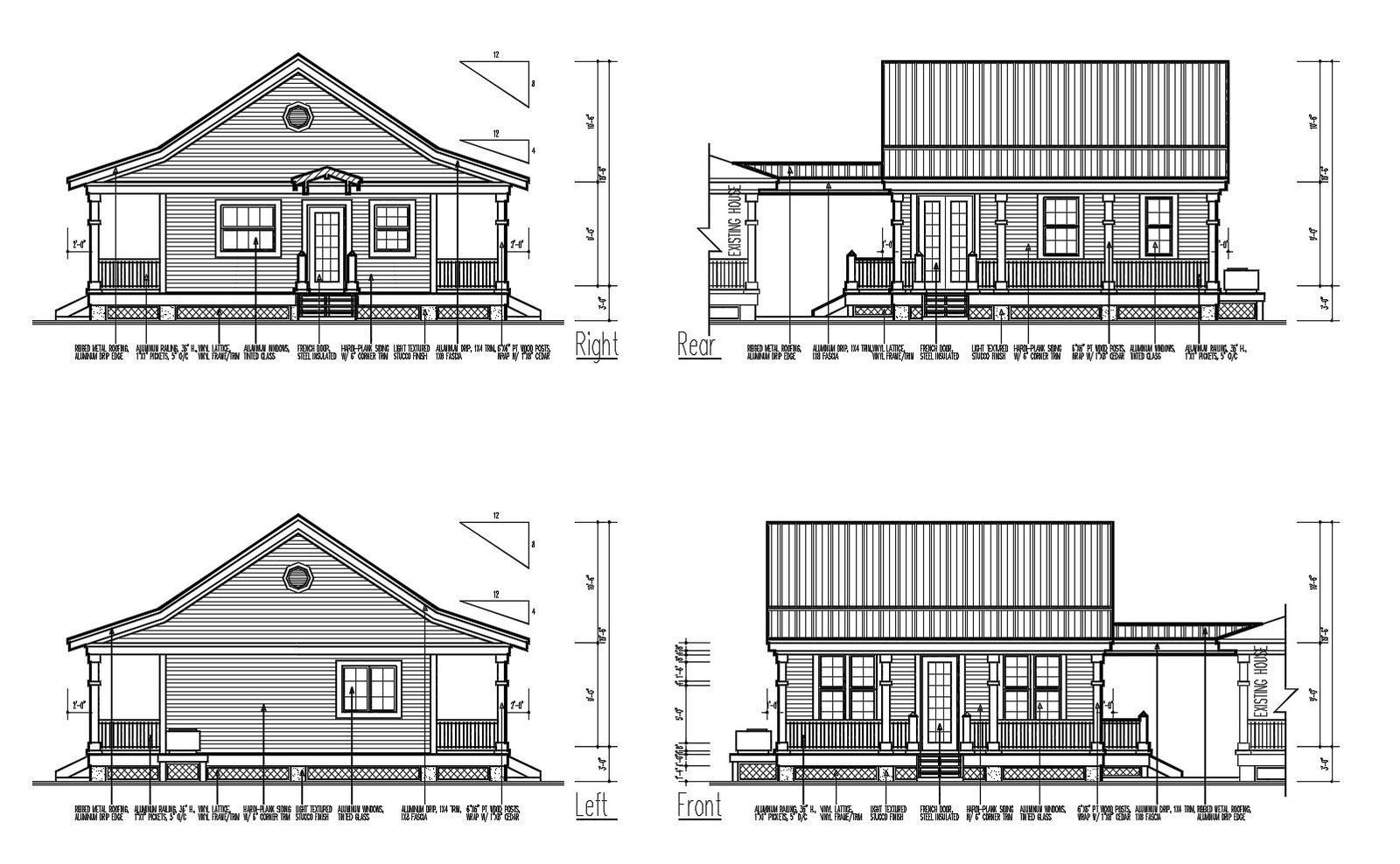
House Elevation Design In AutoCAD File which provides detail of front elevation, back elevation, left elevation, right elevation, detail of floor level, detail of entrance.

Uploaded by:
Eiz
Luna

Uploaded by:
Luna