LOGIN
HOME
CATEGORIES
UPLOAD FILE
PRICING
HOUSE PLAN
ABOUT US
CONTACT US
Modern Church Design In AutoCAD File
Home
Categories
Architecture
Temple & Church
Modern Church Design In AutoCAD File
Uploaded by:
Eiz
Luna
View Profile
View Profile
Description
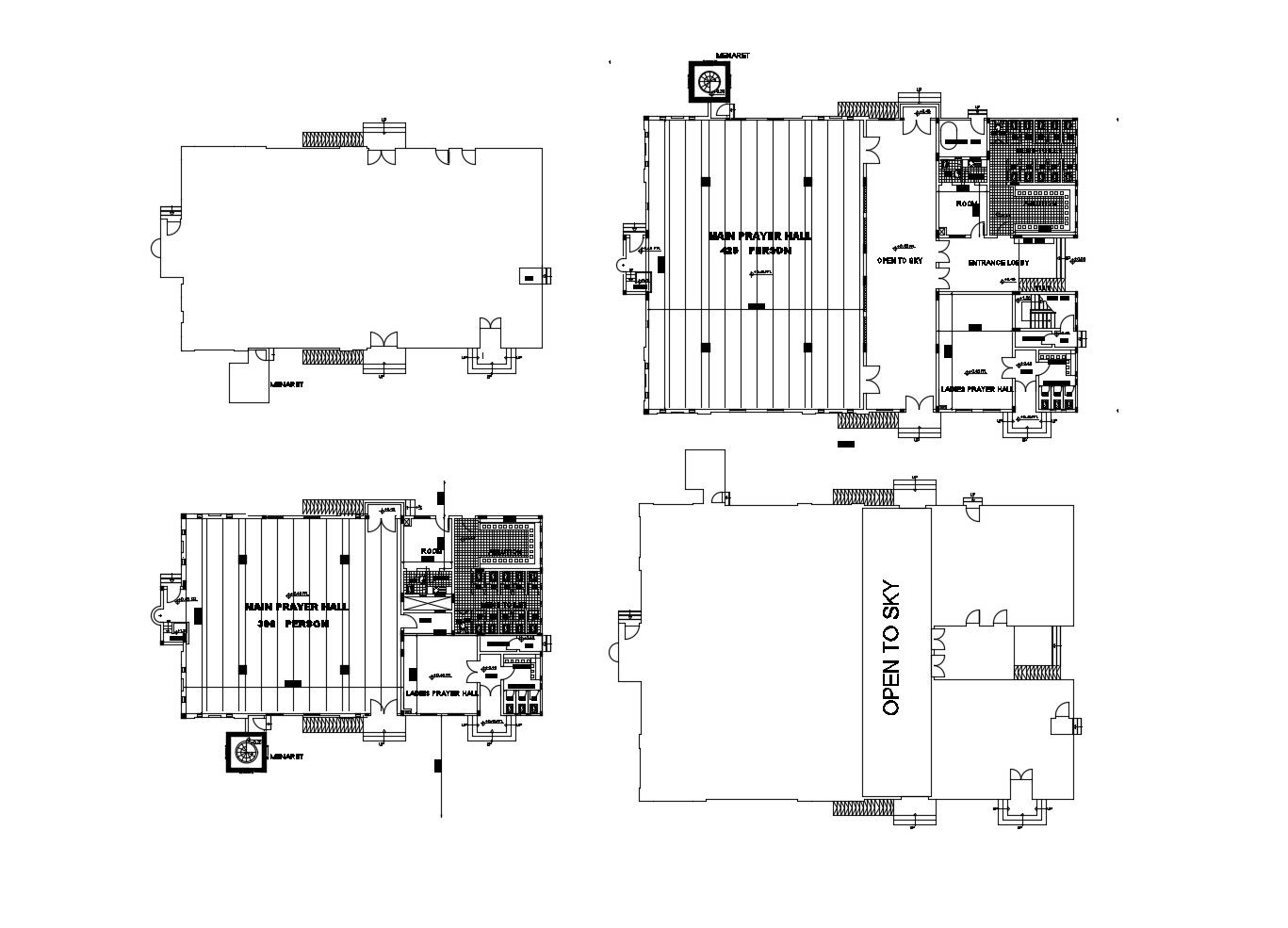
Modern Church Design In AutoCAD File which provides detail main prayer hall, ladies prayer hall, entrance lobby, water tank room, electric room, WC and bath.
File Type:
DWG
File Size:
1.8 MB
Category::
Architecture
Sub Category::
Temple & Church
type:
Gold
Uploaded by:
Eiz
Luna
View Profile
Download
Add to libary
find Latest
Related
Files