Penthouse Design In DWG File
Description
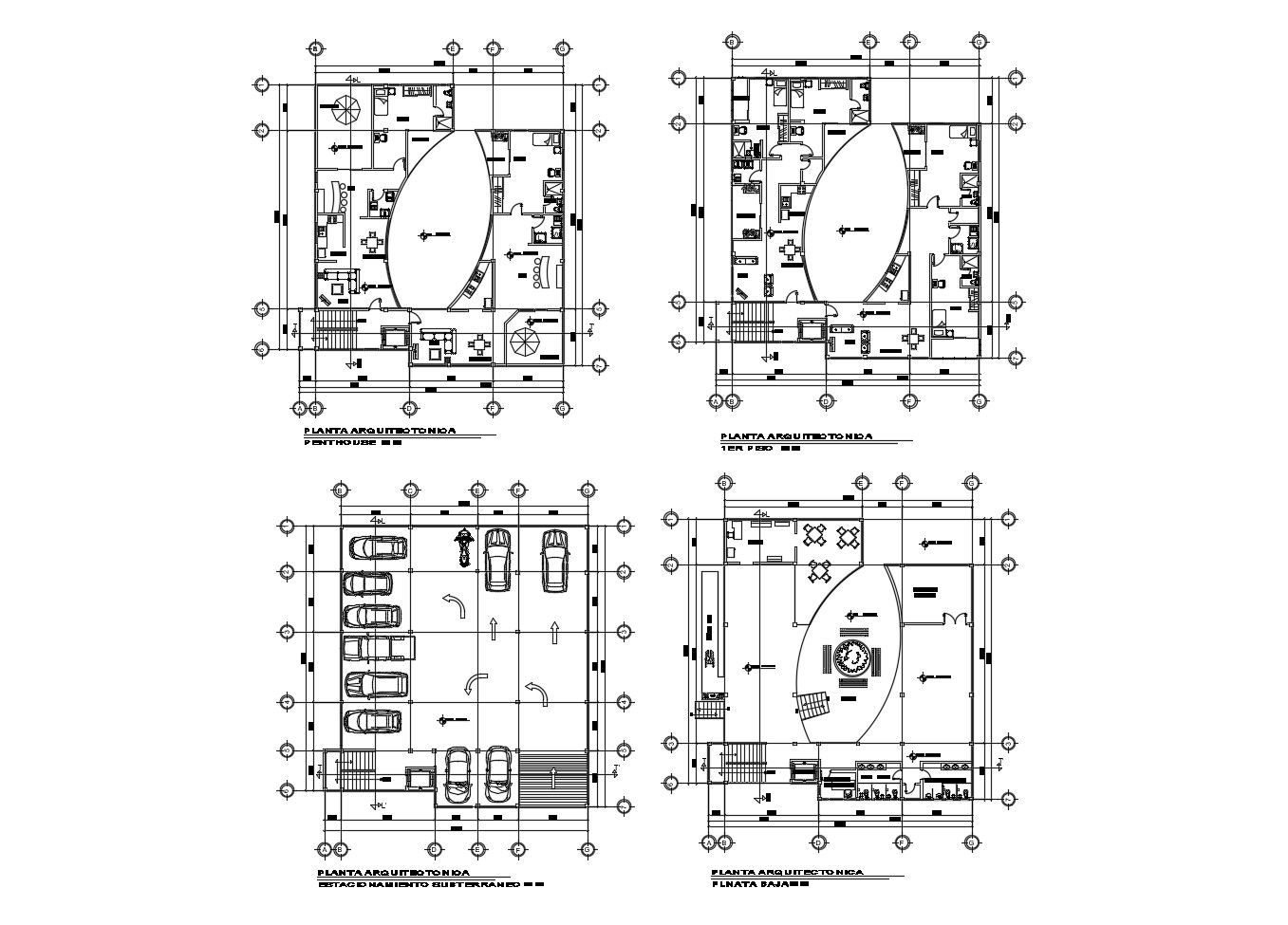
Penthouse Design In DWG File which provides detail of the hall, waiting area, bar area, cafe area, kitchen, rooms, bathroom. It also gives detail of the car parking area.

Uploaded by:
Eiz
Luna

Uploaded by:
Luna