LOGIN
HOME
CATEGORIES
UPLOAD FILE
PRICING
HOUSE PLAN
ABOUT US
CONTACT US
Cafe Design In AutoCAD File
Home
Categories
Architecture
Hotels and Restaurants
Cafe Design In AutoCAD File
Uploaded by:
Eiz
Luna
View Profile
View Profile
Description
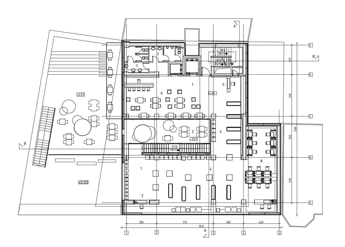
Cafe Design In AutoCAD File which provides detail of hall, dining area, passage, counters, washroom. It also gives detail of furniture.
File Type:
DWG
File Size:
380 KB
Category::
Architecture
Sub Category::
Hotels and Restaurants
type:
Gold
Uploaded by:
Eiz
Luna
View Profile
Download
Add to libary
find Latest
Related
Files