Clubhouse Design In AutoCAD File
Description
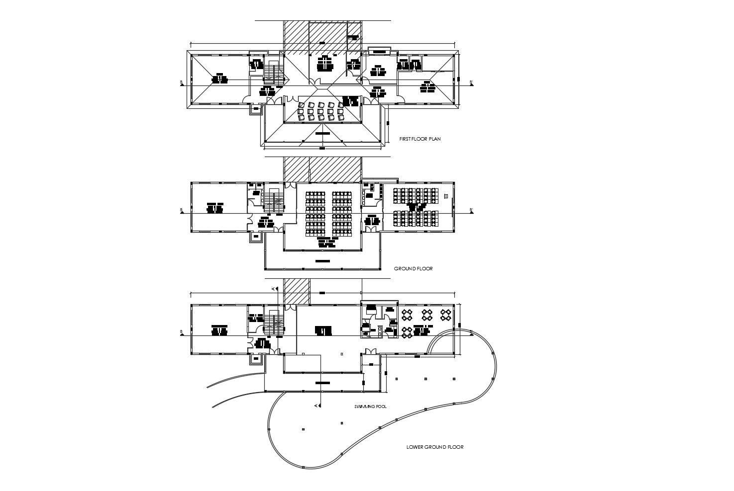
Clubhouse Design In AutoCAD File which provides detail of the restaurant area, gym area, lobby, lounge and bar area, water closet and bath, swimming pool. It also gives detail of the lower ground floor.

Uploaded by:
Eiz
Luna

