Clinic Plan with Dimensions Details
Description
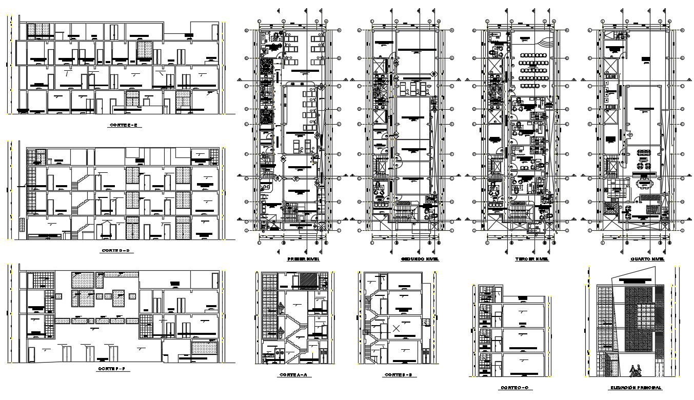
Clinic plan with dimension detail in dwg file which provides detail of front elevation, side elevation, section plan, dimension detail of all drawings like reception area, passage, consultant room, rooms, and bath, etc it also gives detail of location plan.

Uploaded by:
Eiz
Luna

