2 Storey House Section Plan
Description
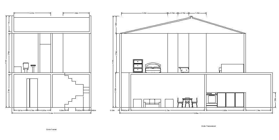
2 storey house section plan dwg file which includes detail of floor level, detail of hall, bedroom, bathroom, etc it also gives detail of dimension detail in the drawing.

Uploaded by:
Eiz
Luna

Uploaded by:
Luna