Architecture House Plan Cad File
Description
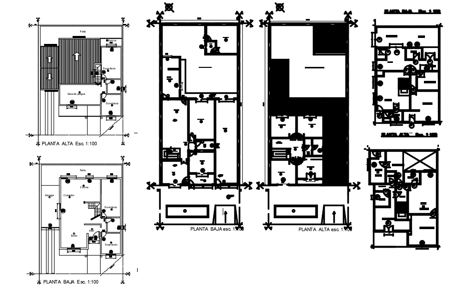
architecture house plan dwg file; architecture house layout plan of the ground floor and first-floor plan design; showing all dimension detail of drawing room, bedroom, kitchen, dining room, bathroom, toilet. along with section plan and elevation design of house project.

Uploaded by:
Eiz
Luna

