Office Building Floor plan DWG file

Office Building Floor plan DWG file
Profile

Uploaded by:

Eiz

Luna

Description
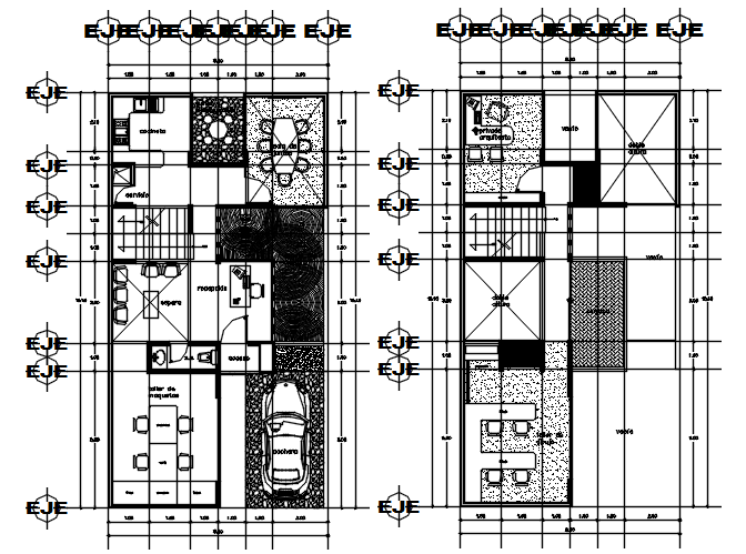
Office Building Floor Plan with all furniture details in DWG file includes a reception area, waiting room, classroom, toilet, and car parking. download office building dwg file and use it for multipurpose cad presentation.
Profile

Uploaded by:

Eiz

Luna

find Latest

Related Files

WhatsApp Chat