LOGIN
HOME
CATEGORIES
UPLOAD FILE
PRICING
HOUSE PLAN
ABOUT US
CONTACT US
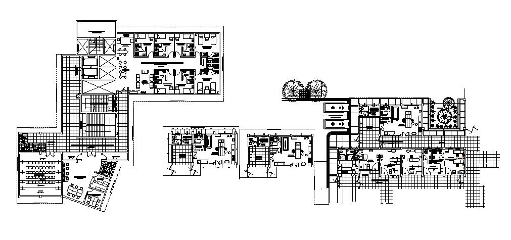
Hospital design with detail dimension in autocad
Home
Categories
Architecture
Hospital Projects
Hospital design with detail dimension in autocad
Uploaded by:
Eiz
Luna
View Profile
View Profile
Description
Hospital design with detail dimension in autocad which includes details of different department, detail of furniture, etc.
File Type:
DWG
File Size:
1.4 MB
Category::
Architecture
Sub Category::
Hospital Projects
type:
Gold
Uploaded by:
Eiz
Luna
View Profile
Download
Add to libary
find Latest
Related
Files