Office Layout Design In AutoCAD File
Description
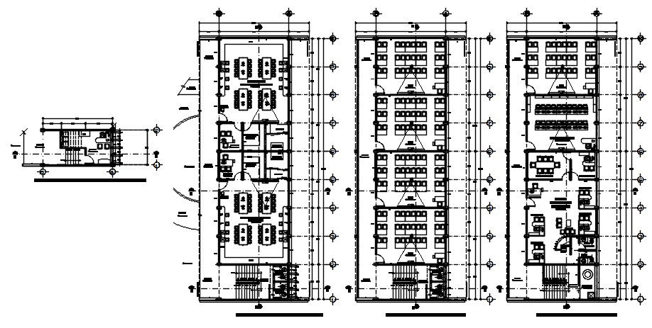
Office Layout Design In AutoCAD File which includes detail of the classroom, detail of office area, detail of water closet and bath. it also gives detail of furniture.

Uploaded by:
Eiz
Luna

Uploaded by:
Luna