LOGIN
HOME
CATEGORIES
UPLOAD FILE
PRICING
HOUSE PLAN
ABOUT US
CONTACT US
Office Building Plan In DWG File
Home
Categories
Furniture
Furniture Blocks
Office Building Plan In DWG File
Uploaded by:
Eiz
Luna
View Profile
View Profile
Description
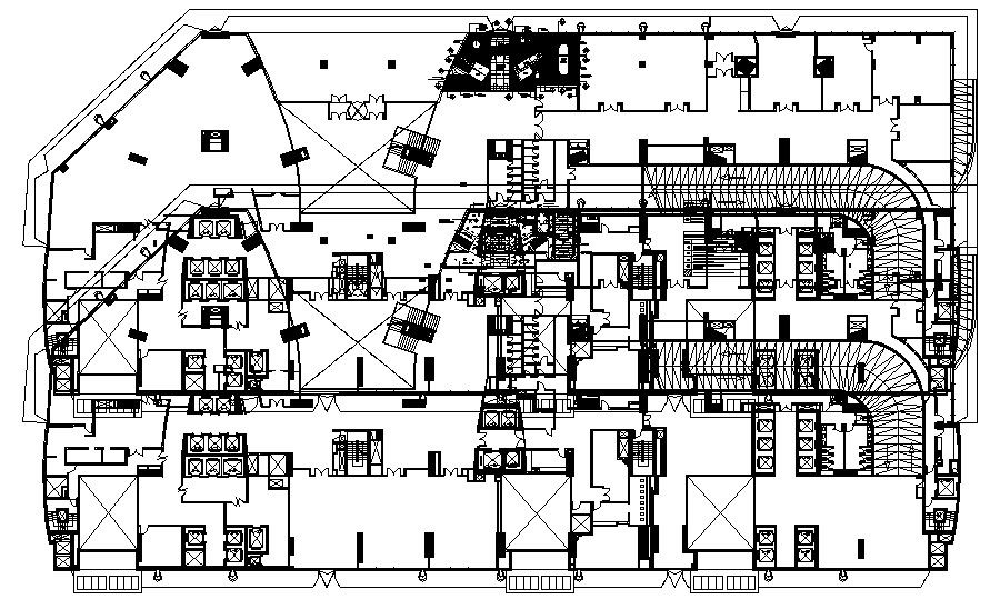
Office Building Plan In DWG File which provides detail of the meeting room, carpet area, reception area, working area, etc it also gives detail of ceiling layout.
File Type:
DWG
File Size:
7.1 MB
Category::
Furniture
Sub Category::
Furniture Blocks
type:
Gold
Uploaded by:
Eiz
Luna
View Profile
Download
Add to libary
find Latest
Related
Files