House design plan with detail diemension in dwg file
Description
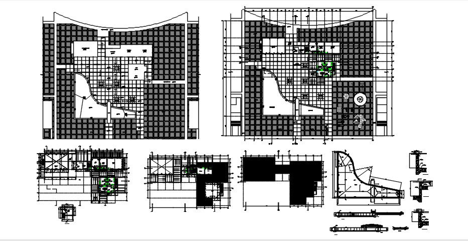
House design plan with detail dimension in dwg file which provides detail of floor area, detail of site plan, detail of the different sections, etc.

Uploaded by:
Eiz
Luna

Uploaded by:
Luna