House Layout Design In AutoCAD
Description
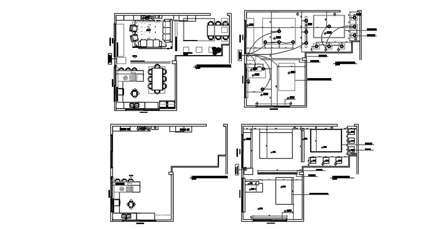
House Layout Design In AutoCAD that shows a work plan of the house along with furniture layout details in the house also included. Room dimension and room detail of drawings room bedroom kitchen and dining area with sanitary toilet and bathroom details.

Uploaded by:
Eiz
Luna

