Download free Elevation drawing of house in AutoCAD
Description
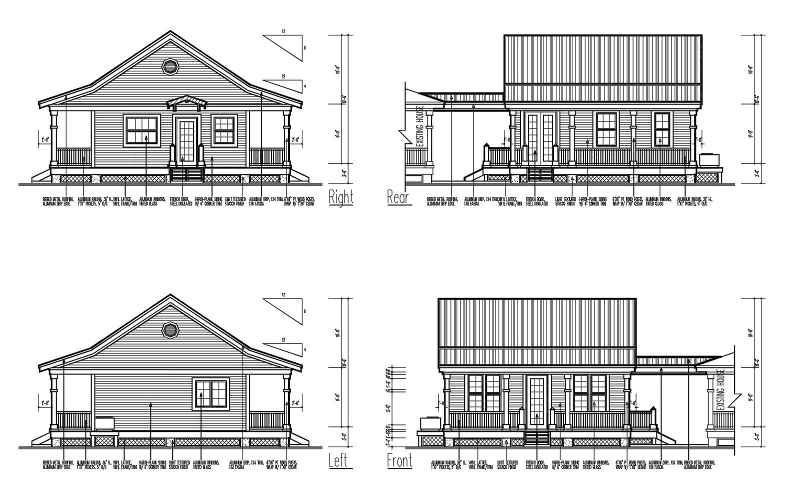
Download free Elevation drawing of house in AutoCAD which provides detail of front elevation, back elevation, left elevation, right elevation, detail of floor level, detail of entrance, etc.

Uploaded by:
Eiz
Luna
