LOGIN
HOME
CATEGORIES
UPLOAD FILE
PRICING
HOUSE PLAN
ABOUT US
CONTACT US
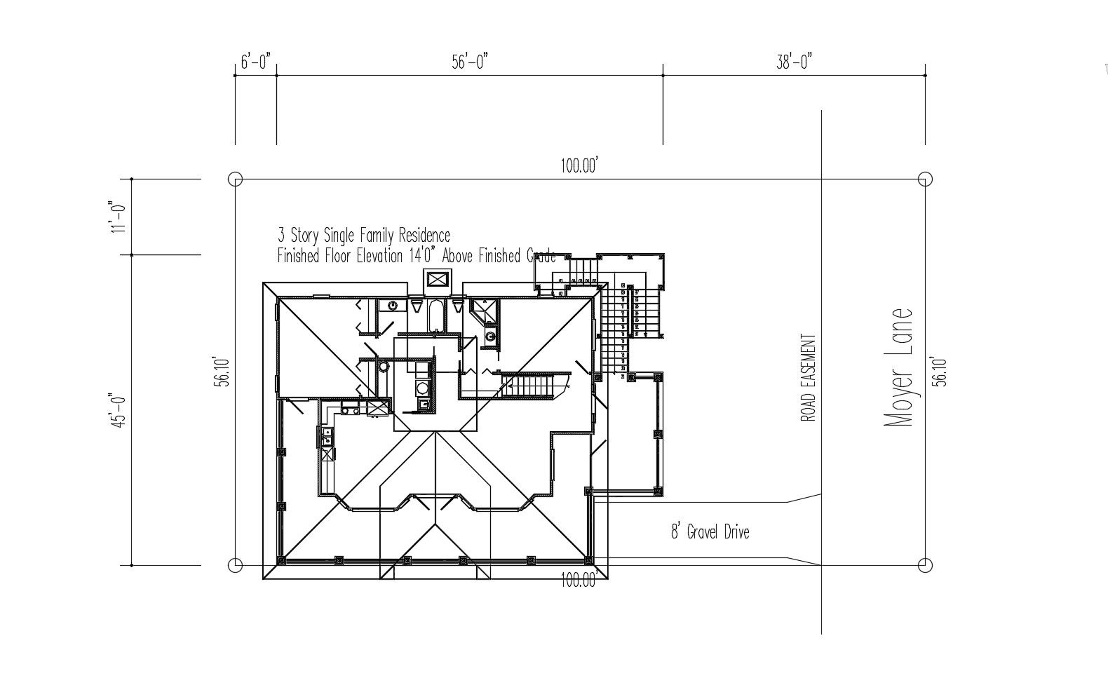
Single-family home layout in AutoCAD
Home
Categories
Architecture
House Plan
Single-family home layout in AutoCAD
Uploaded by:
Eiz
Luna
View Profile
View Profile
Description
Single-family home layout in AutoCAD which provide detail of finished floor elevation, gravel drive, road easement, Moyer lane, etc.
File Type:
DWG
File Size:
1.8 MB
Category::
Architecture
Sub Category::
House Plan
type:
Gold
Uploaded by:
Eiz
Luna
View Profile
Download
Add to libary
find Latest
Related
Files