Download Free Parking plan design in DWG file
Description
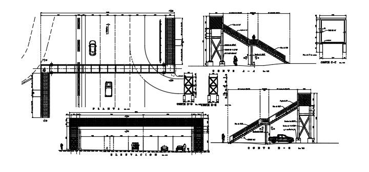
Download Free Parking plan design in DWG file which provides detail of elevation drawing of the parking area, different section, detail of floor level, etc.

Uploaded by:
Eiz
Luna

Uploaded by:
Luna