Electric layout plan of the hostel with detail dimension in dwg file
Description
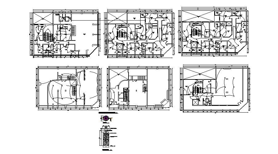
Electric layout plan of the hostel with detail dimension in dwg file which provides detail of electric layout plan, detail of the different section, detail dimension of the room, hall, passage, bathroom, toilet, etc

Uploaded by:
Eiz
Luna

