Plan of Residential house 9.20mtr x 20.37mtr in dwg file
Description
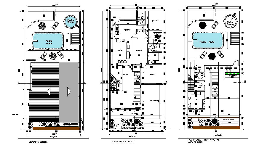
Plan of Residential house 9.20mtr x 20.37mtr in dwg file which provide detail of different section, floor level, detail dimension of garden area, lawn area, passage, hall, bedroom,kitchen, bathroom, toilet, etc.

Uploaded by:
Eiz
Luna

