Design of the residential apartment with detail dimension in dwg file
Description
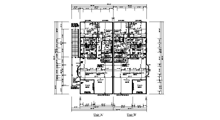
Design of the residential apartment with detail dimension in dwg file which includes detail of livingroom, bedroom, kitchen with dining area, bathroom, toilet, etc it also gives detail of porch, detail of staircase.

Uploaded by:
Eiz
Luna

