House Plans AutoCAD Drawings
Description
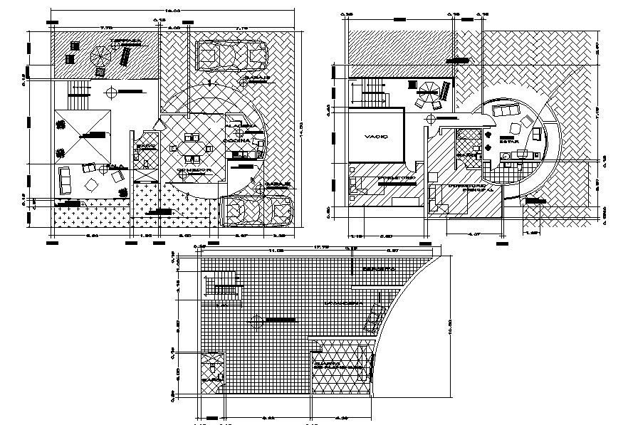
House Plans AutoCAD Drawings which provides detail of drawing room, bedroom, kitchen, dining room, bathroom, toilet, parking area, lawn area, etc it also gives detail of furniture.

Uploaded by:
Eiz
Luna

Uploaded by:
Luna