Plan of building with detail dimension in autocad
Description
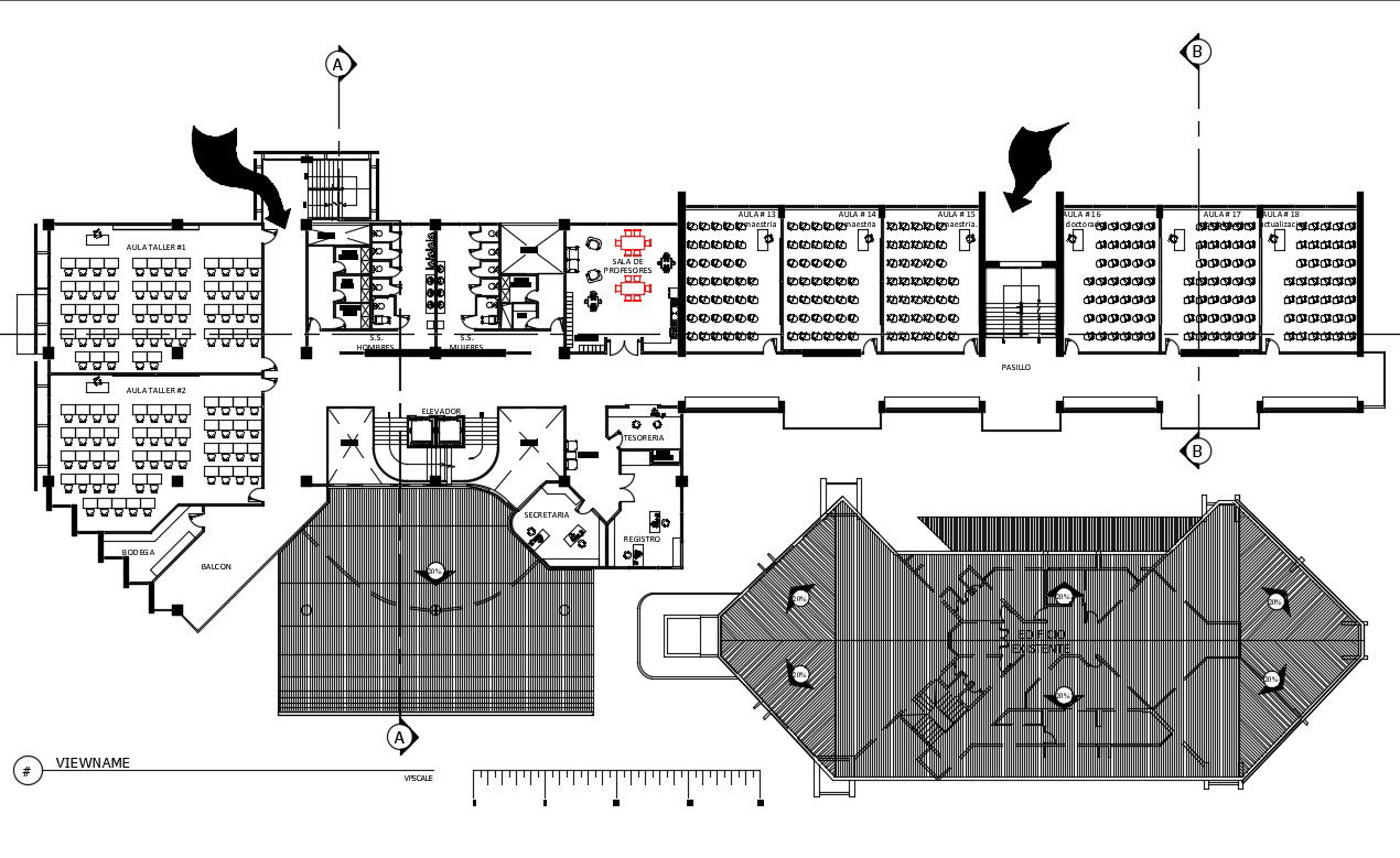
Plan of building with detail dimension in autocad which includes detail of different department, detail of reception area, detail of washroom and toilet, etc.

Uploaded by:
Eiz
Luna

Uploaded by:
Luna