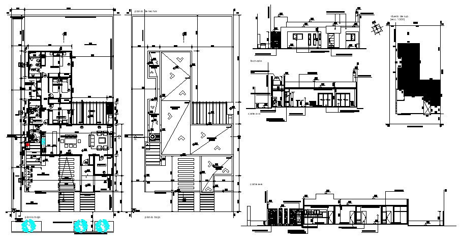
Single story house in Autocad file
Description
Single story house in Autocad file which provides detail hall, bedroom, kitchen with dining room, bathroom, toilet, etc detail of terrace plan, detail of furniture.

Uploaded by:
Eiz
Luna

Uploaded by:
Luna