LOGIN
HOME
CATEGORIES
UPLOAD FILE
PRICING
HOUSE PLAN
ABOUT US
CONTACT US
House plan drawing in AutoCAD file
Home
Categories
Architecture
House Plan
House plan drawing in AutoCAD file
Uploaded by:
Eiz
Luna
View Profile
View Profile
Description
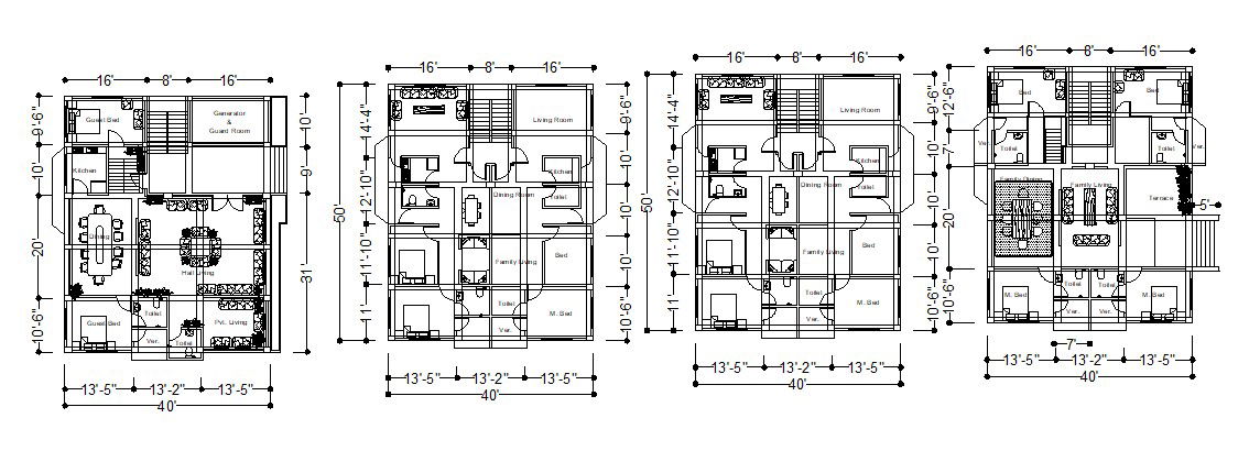
House plan drawing in AutoCAD file which provides detail of drawing room, bedroom, kitchen, dining room, bathroom, toilet, etc.
File Type:
DWG
File Size:
247 KB
Category::
Architecture
Sub Category::
House Plan
type:
Gold
Uploaded by:
Eiz
Luna
View Profile
Download
Add to libary
find Latest
Related
Files