LOGIN
HOME
CATEGORIES
UPLOAD FILE
PRICING
HOUSE PLAN
ABOUT US
CONTACT US
Bungalow drawing in DWG file
Home
Categories
Architecture
Bungalow House Design
Bungalow drawing in DWG file
Uploaded by:
Eiz
Luna
View Profile
View Profile
Description
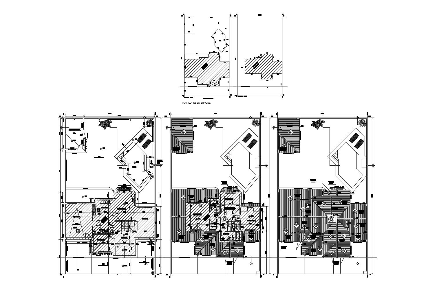
Bungalow drawing in DWG file which provides detail of hall, bedroom, kitchen, dining area, bathroom, toilet, etc it also gives detail of roof plan.
File Type:
DWG
File Size:
810 KB
Category::
Architecture
Sub Category::
Bungalow House Design
type:
Gold
Uploaded by:
Eiz
Luna
View Profile
Download
Add to libary
find Latest
Related
Files