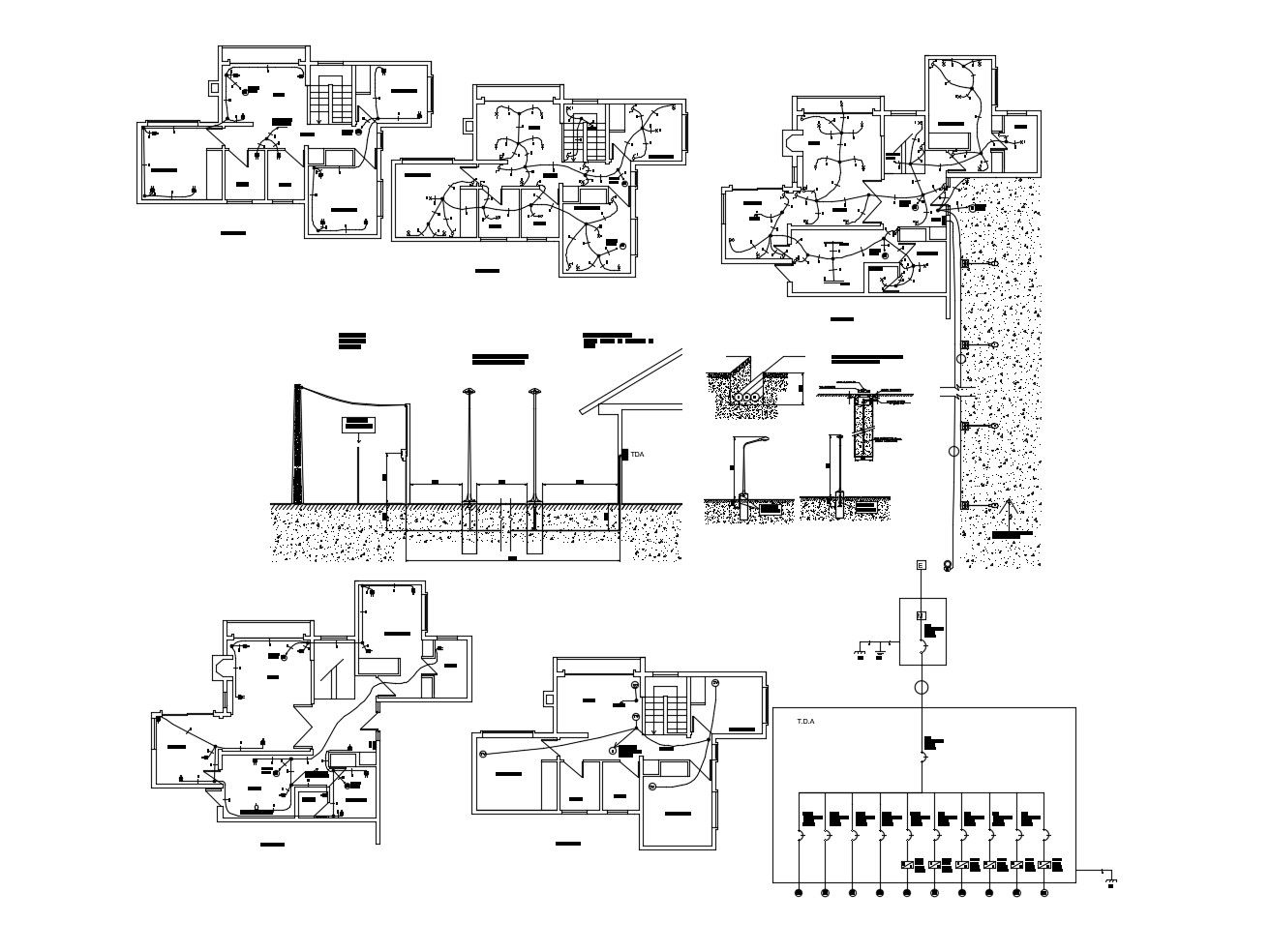
Residential house with detail dimension in AutoCAD file
Description
Residential house with detail dimension in AutoCAD file which provides detail of the living room, bedroom, kitchen, dining area, bathroom, toilet, etc it also gives detail of the electric layout plan.

Uploaded by:
Eiz
Luna

