LOGIN
HOME
CATEGORIES
UPLOAD FILE
PRICING
HOUSE PLAN
ABOUT US
CONTACT US
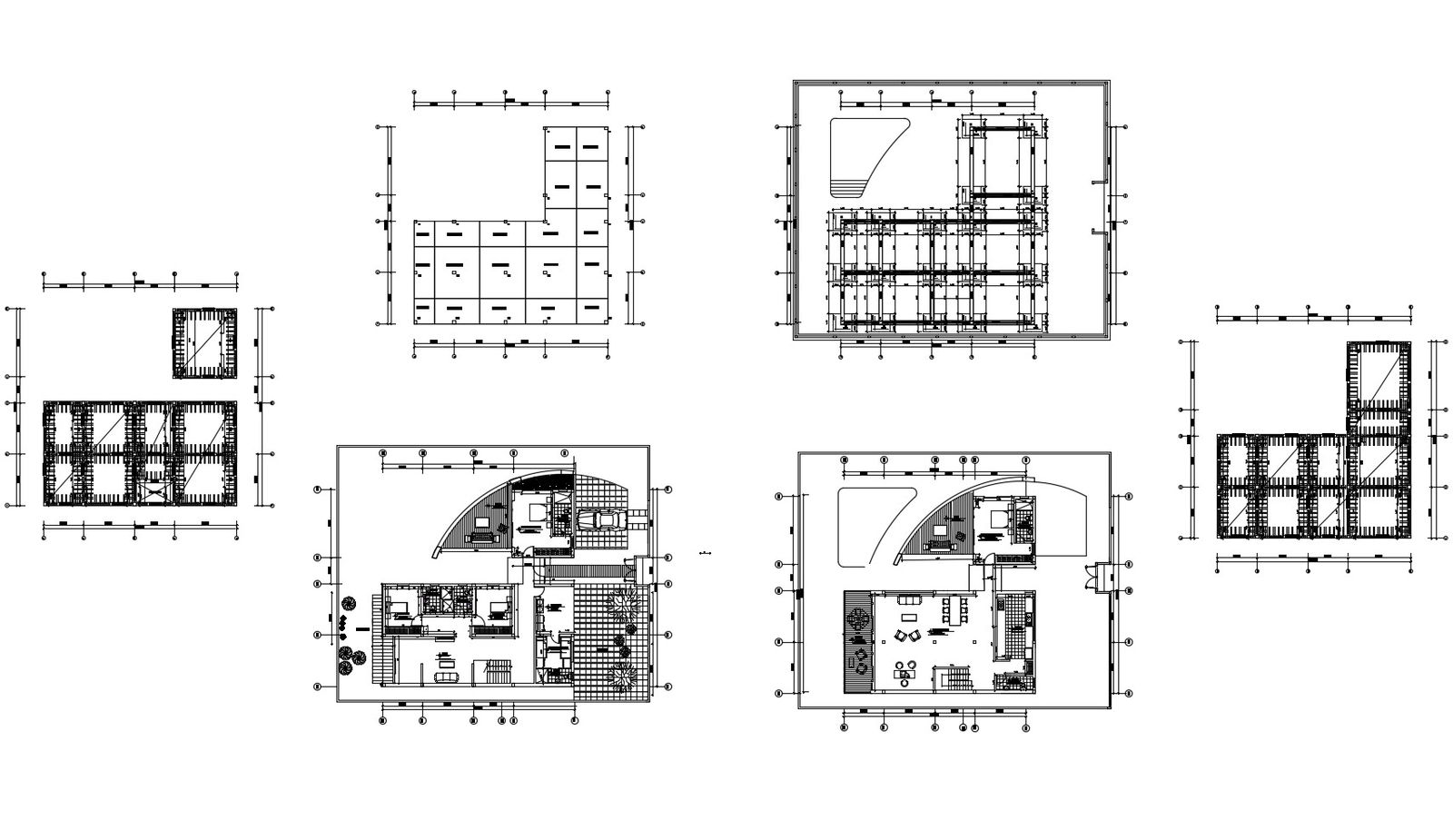
Condo plan in AutoCAD file
Home
Categories
Architecture
House Plan
Condo plan in AutoCAD file
Uploaded by:
Eiz
Luna
View Profile
View Profile
Description
Condo plan in AutoCAD file which provides detail of hall, bedroom, kitchen with dining area, bathroom, toilet, etc it also gives detail of furniture.
File Type:
DWG
File Size:
938 KB
Category::
Architecture
Sub Category::
House Plan
type:
Gold
Uploaded by:
Eiz
Luna
View Profile
Download
Add to libary
find Latest
Related
Files