LOGIN
HOME
CATEGORIES
UPLOAD FILE
PRICING
HOUSE PLAN
ABOUT US
CONTACT US
2 storey house design in AutoCAD file
Home
Categories
Architecture
House Plan
2 storey house design in AutoCAD file
Uploaded by:
Eiz
Luna
View Profile
View Profile
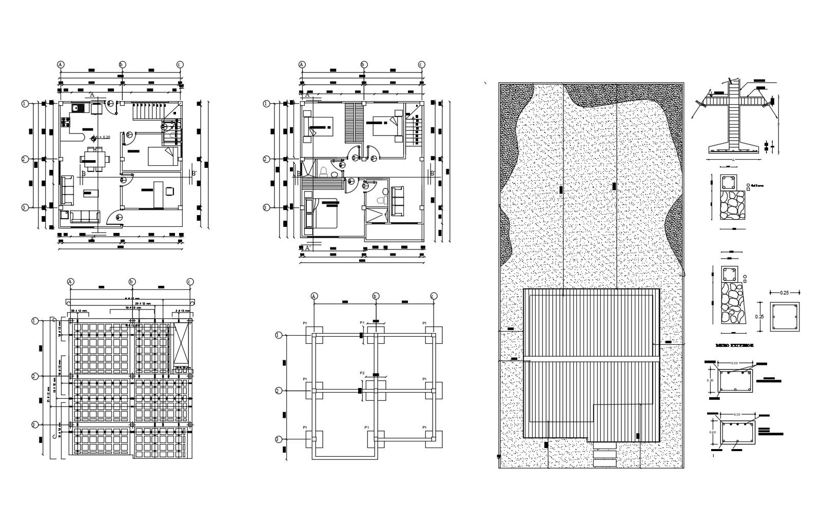
Description
2 storey house design in AutoCAD file which provides detail of Hall, bedroom, kitchen, dining area, bathroom, toilet, foundation plan, etc.
File Type:
DWG
File Size:
466 KB
Category::
Architecture
Sub Category::
House Plan
type:
Gold
Uploaded by:
Eiz
Luna
View Profile
Download
Add to libary
find Latest
Related
Files