LOGIN
HOME
CATEGORIES
UPLOAD FILE
PRICING
HOUSE PLAN
ABOUT US
CONTACT US
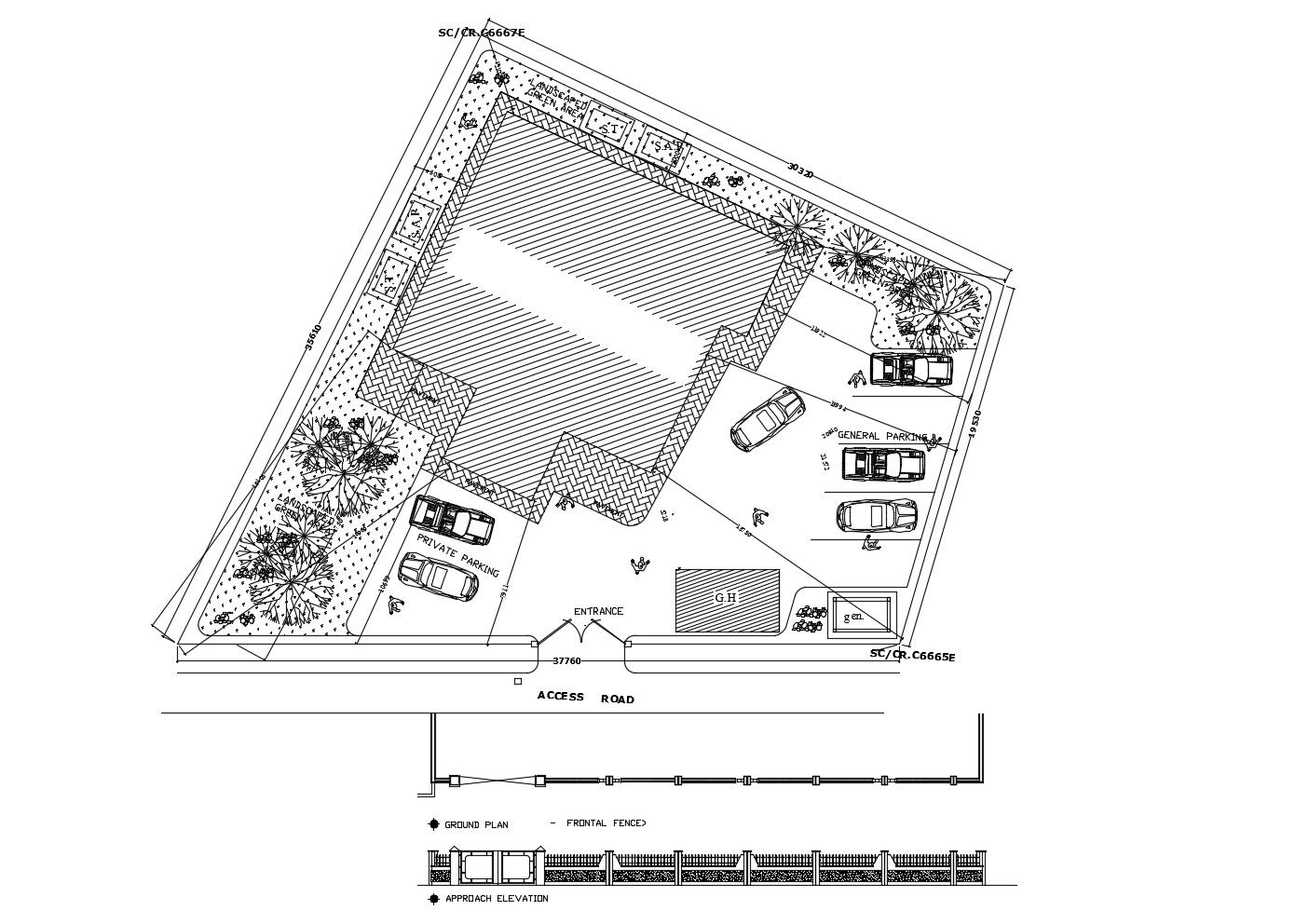
Residential building layout plan in AutoCAD file
Home
Categories
Architecture
Apartment Drawing
Residential building layout plan in AutoCAD file
Uploaded by:
Eiz
Luna
View Profile
View Profile
Description
Residential building layout plan in AutoCAD file it provides detail of site area, parking details, garden area, etc it also gives detail of fencing.
File Type:
DWG
File Size:
1.7 MB
Category::
Architecture
Sub Category::
Apartment Drawing
type:
Gold
Uploaded by:
Eiz
Luna
View Profile
Download
Add to libary
find Latest
Related
Files