Two storey house plan with detail dimension in AutoCAD
Description
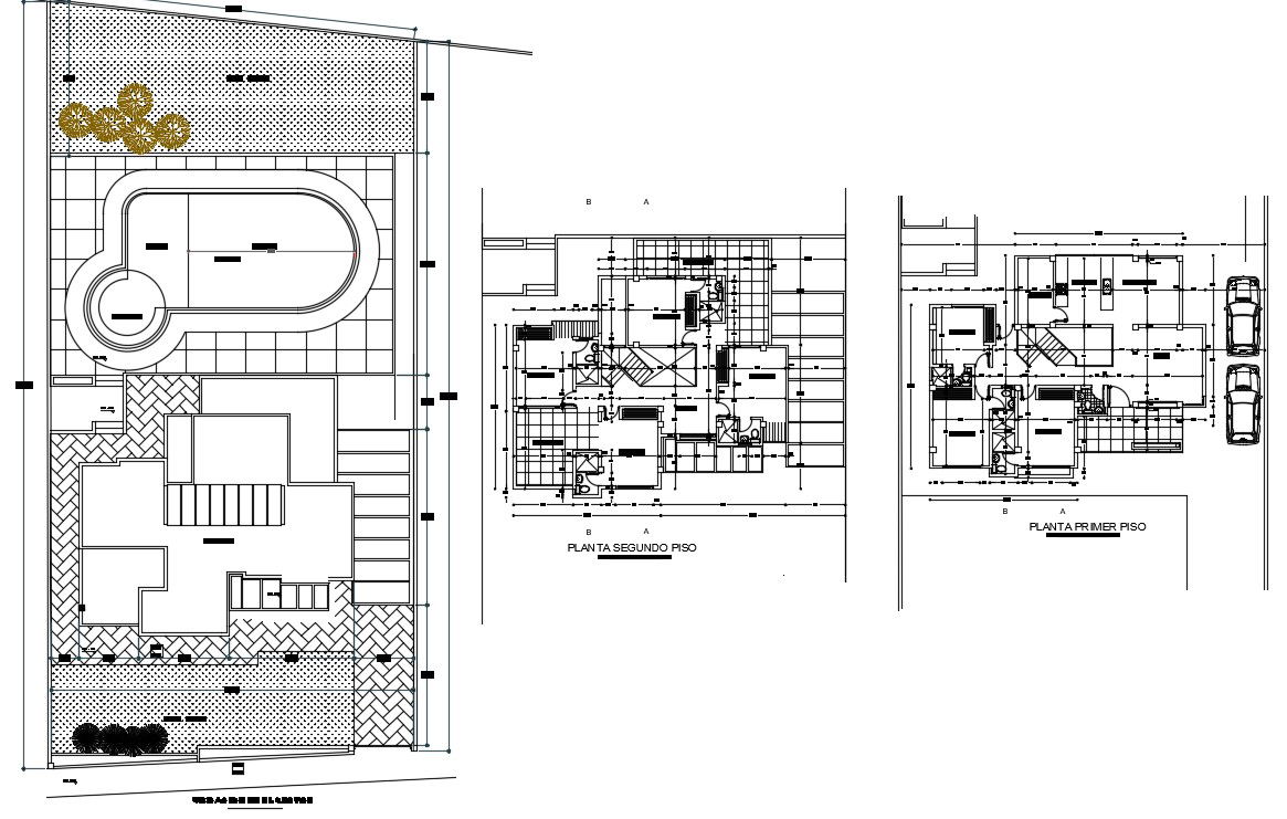
Two storey house plan with detail dimension in AutoCAD which provide detail of drawing room, bedroom, kitchen, dining room, bathroom, toilet, garden area, etc.

Uploaded by:
Eiz
Luna

Uploaded by:
Luna