Architectural house plans in DWG file
Description
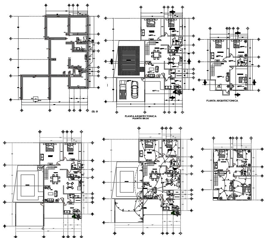
Architectural house plans in DWG file which includes a dining area, bedroom, kitchen, hall, etc. it also include details of furniture of the house and electrical layout plan.

Uploaded by:
Eiz
Luna

Uploaded by:
Luna