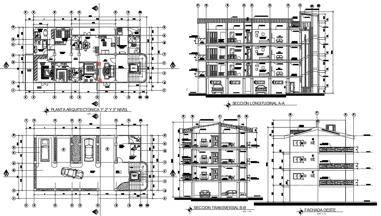
Apartment architecture design plans with detail dimension in DWG file
Description
Apartment architecture design plans with detail dimension in DWG file which includes details dimension of parking layout, west side elevation, east side elevation, etc. it also includes room, hall, kitchen, lobby, etc.

Uploaded by:
Eiz
Luna

