LOGIN
HOME
CATEGORIES
UPLOAD FILE
PRICING
HOUSE PLAN
ABOUT US
CONTACT US
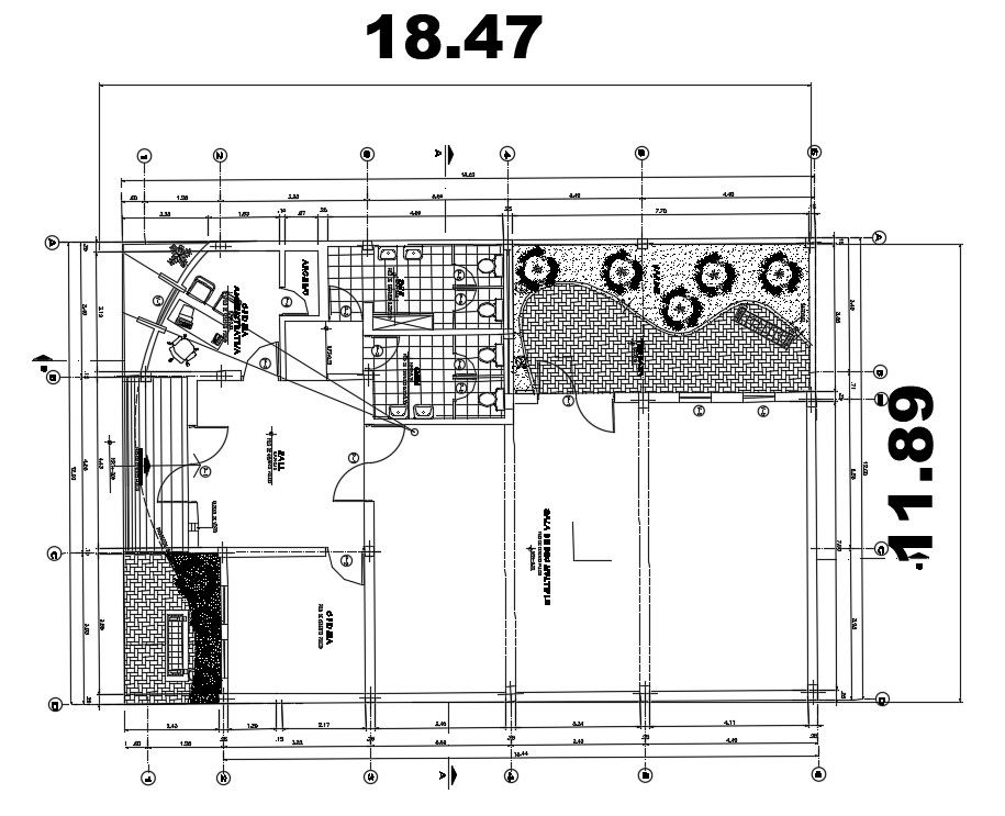
Building plans with detail dimension
Home
Categories
Architecture
Bungalow House Design
Building plans with detail dimension
Uploaded by:
Eiz
Luna
View Profile
View Profile
Description
Building plan with detail dimension which provides details of working area, reception area, washroom, toilet and also garden details.
File Type:
DWG
File Size:
1.8 MB
Category::
Architecture
Sub Category::
Bungalow House Design
type:
Gold
Uploaded by:
Eiz
Luna
View Profile
Download
Add to libary
find Latest
Related
Files